Listing Tools

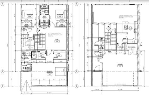
Final stages are underway-drywall and painting are nearly complete, with cabinetry and flooring coming next. It's not too late to select your custom cabinetry and flooring and make this home your own. Each thoughtfully designed 2,200 sq ft condo offers 3 bedrooms, 3 baths, and an open-concept layout with 9' ceilings, quartz countertops, custom finishes, and a shiplap gas fireplace-perfect for both everyday living and entertaining. Upstairs, the spacious primary suite includes dual closets and a private bath with dual vanities and a tiled shower. Two additional bedrooms share a Jack & Jill bath, while a versatile loft provides flexible space for a home office or lounge. A large laundry room with built-in cabinetry adds everyday convenience. Additional highlights include a heated 2-stall garage, private patio, in-floor heat on the main level and garage, and an on-demand water heater. The HOA covers lawn care, snow removal, garbage, sewer, and exterior maintenance for easy, low-maintenance living. Includes a 5-Year Tax Abatement and optional Freedom Boat Club membership. Ideally located near All Vets Golf Course, McIntosh Woods State Park, and Hwy 18W-schedule your private showing today.

Property Details of 214 Stonebrook Court

Utilities and Appliances

Community

Map Location

Driving Directions

Listed by Jennifer Kopriva of Lakeside Brokers

 "Based on information submitted to North Central Iowa Regional MLS as of May 15, 2026 11:42 AM EDT . All data is deemed reliable but is not guaranteed accurate by the MLS. All information should be independently reviewed and verified for accuracy. IDX information is provided exclusively for consumers’ personal, noncommercial use and may not be used for any purpose other than to identify prospective properties consumers may be interested in purchasing."

Hi there! How can we help you?

Contact us using the form below or give us a call.

Send Us A Message:

I agree to receive marketing and customer service calls and text messages from Century 21 Preferred. To opt out, you can reply 'stop' at any time or click the unsubscribe link in the emails. Consent is not a condition of purchase. Msg/data rates may apply. Msg frequency varies. Privacy Policy.

Do not fill in this field:

This site is protected by reCAPTCHA and the Google Privacy Policy and Terms of Service apply.

Hi there! How can we help you?

Contact us using the form below or give us a call.

Send Us A Message:

Do not fill in this field:

This site is protected by reCAPTCHA and the Google Privacy Policy and Terms of Service apply.

Hi there! How can we help you?

Contact us using the form below or give us a call.

Send Us A Message:

Do not fill in this field:

This site is protected by reCAPTCHA and the Google Privacy Policy and Terms of Service apply.

Do not fill in this field:

This site is protected by reCAPTCHA and the Google Privacy Policy and Terms of Service apply.

Do not fill in this field:

This site is protected by reCAPTCHA and the Google Privacy Policy and Terms of Service apply.

Do not fill in this field:

This site is protected by reCAPTCHA and the Google Privacy Policy and Terms of Service apply.

$

Do not fill in this field:

This site is protected by reCAPTCHA and the Google Privacy Policy and Terms of Service apply.