Listing Tools

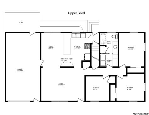
Tastefully styled home in Manly...Move right into this fully updated gem on a corner lot surrounded by mature trees. This marvelous home features new Hickory wood floors, Modern bathrooms, and a freshly painted interior and exterior. Major upgrades include a 2021 electrical upgrade, new windows, roof (2020), mini-split heating/cooling, as well as an air exchanger for year-round comfort, a fully finished basement with egress window including a home office which could easily become a fifth bedroom, a spacious backyard patio perfect for sunsets and grilling, along with an insulated garage with attic storage. Located across from the community pool, near parks, schools, and churches. This property blends small-town charm with modern convenience. Families will also appreciate the generous Worth County scholarship program. Here you'll find move-in ready comfort, style, and location all in one...so don't wait another moment to make it your own! Some photos are virtually staged images.

Property Details of 323 W Main

Interior Features

Community

Map Location

Driving Directions

Listed by Joe Chodur of Holtz Realty

 "Based on information submitted to IA_MCBOR as of November 16, 2025 7:04 AM EST . All data is deemed reliable but is not guaranteed accurate by the MLS. All information should be independently reviewed and verified for accuracy. IDX information is provided exclusively for consumers’ personal, noncommercial use and may not be used for any purpose other than to identify prospective properties consumers may be interested in purchasing."

© 2021 Mason City MLS (MCMLS) The information on this website is provided exclusively for consumers' personal, non-commercial use, and may not be used for any purpose other than to identify prospective properties consumers may be interested in purchasing. Information deemed reliable, but not guaranteed.

Data services provided by IA_MCBOR

Hi there! How can we help you?

Contact us using the form below or give us a call.

Send Us A Message:

I agree to receive marketing and customer service calls and text messages from Century 21 Preferred. To opt out, you can reply 'stop' at any time or click the unsubscribe link in the emails. Consent is not a condition of purchase. Msg/data rates may apply. Msg frequency varies. Privacy Policy.

Do not fill in this field:

This site is protected by reCAPTCHA and the Google Privacy Policy and Terms of Service apply.

Hi there! How can we help you?

Contact us using the form below or give us a call.

Send Us A Message:

Do not fill in this field:

This site is protected by reCAPTCHA and the Google Privacy Policy and Terms of Service apply.

Hi there! How can we help you?

Contact us using the form below or give us a call.

Send Us A Message:

Do not fill in this field:

This site is protected by reCAPTCHA and the Google Privacy Policy and Terms of Service apply.

Do not fill in this field:

This site is protected by reCAPTCHA and the Google Privacy Policy and Terms of Service apply.

Do not fill in this field:

This site is protected by reCAPTCHA and the Google Privacy Policy and Terms of Service apply.

Do not fill in this field:

This site is protected by reCAPTCHA and the Google Privacy Policy and Terms of Service apply.

$

Do not fill in this field:

This site is protected by reCAPTCHA and the Google Privacy Policy and Terms of Service apply.